PROMOCIÓ CAN SERRA A


Es tracta de 8 habitatges unifamiliars en filera, dividits en 2 grups de 4. 
Desenvolupats en 3 plantes, amb garatge per a 2 cotxes a peu de carrer. 
Jardí privat i zona verda comunitària. 

Promoción Can Serra A

Habitatge 1

Habitatge testera amb garatge gran.


- Superfície construïda: 292,79 m2

- Superfície parcel·la: 432,35 m2

- Habitacions: 4

- Banys: 3

- Estat: VENUDA

Promoción Can Serra A

Habitatge 2


Habitatge entre mitgeres.


- Superfície construïda: 255,19 m2

- Superfície parcel·la: 202,64 m2

- Habitacions: 4

- Banys: 3

- Estat: VENUDA

Promoción Can Serra A

Habitatge   3

Habitatge entre mitgeres.


- Superfície construïda: 255,19 m2

- Superfície parcel·la: 202,64 m2

- Habitacions: 4


- Estado: VENUDA



Promoción Can Serra A

Habitatge 4.

Habitatge testera amb garatge estàndard.


- Superfície construïda: 252,46 m2

- Superfície parcel·la: 408,59 m2

- Habitacions: 4

- Banys: 3


- Estat: VENUDA

Promoció Can Serra A

Habitatge 5. 

Habitatge testera amb garatge estàndard.


- Superfície construïda: 252,46 m2

- Superfície parcel·la: 408,66 m2

- Habitacions: 4

- Banys: 3


- Estat: VENUDA

Promoció Can Serra A

Habitatge 6. 

Habitatge entre mitgeres.


- Superfície construïda: 252,19 m2

- Superfície parcel·la: 202,60 m2

- Habitacions: 4

- Banys: 3


- Estat: VENUDA

Promoció Can Serra A

Habitatge 7. 

Habitatge entre mitgeres.


- Superfície construïda: 255,19 m2

- Superfície parcel·la: 202,62 m2

- Habitacions: 4

- Banys: 3


- Estat: VENUDA

Promoció Can Serra A

Habitatge 8. 

Habitatge testera amb garatge gran.


- Superfície construïda: 292,79 m2

- Superfície parcel·la: 408,68 m2

- Habitacions: 4

- Banys: 3


- Estat: VENUDA


HABITATGE 3

Habitatge entre mitgeres.

- Superfície construïda:   255,19 m2
- Superfície parcel·la:  202,69 m2
- Habitacions: 4
- Banys: 3

- Estat: VENUDA

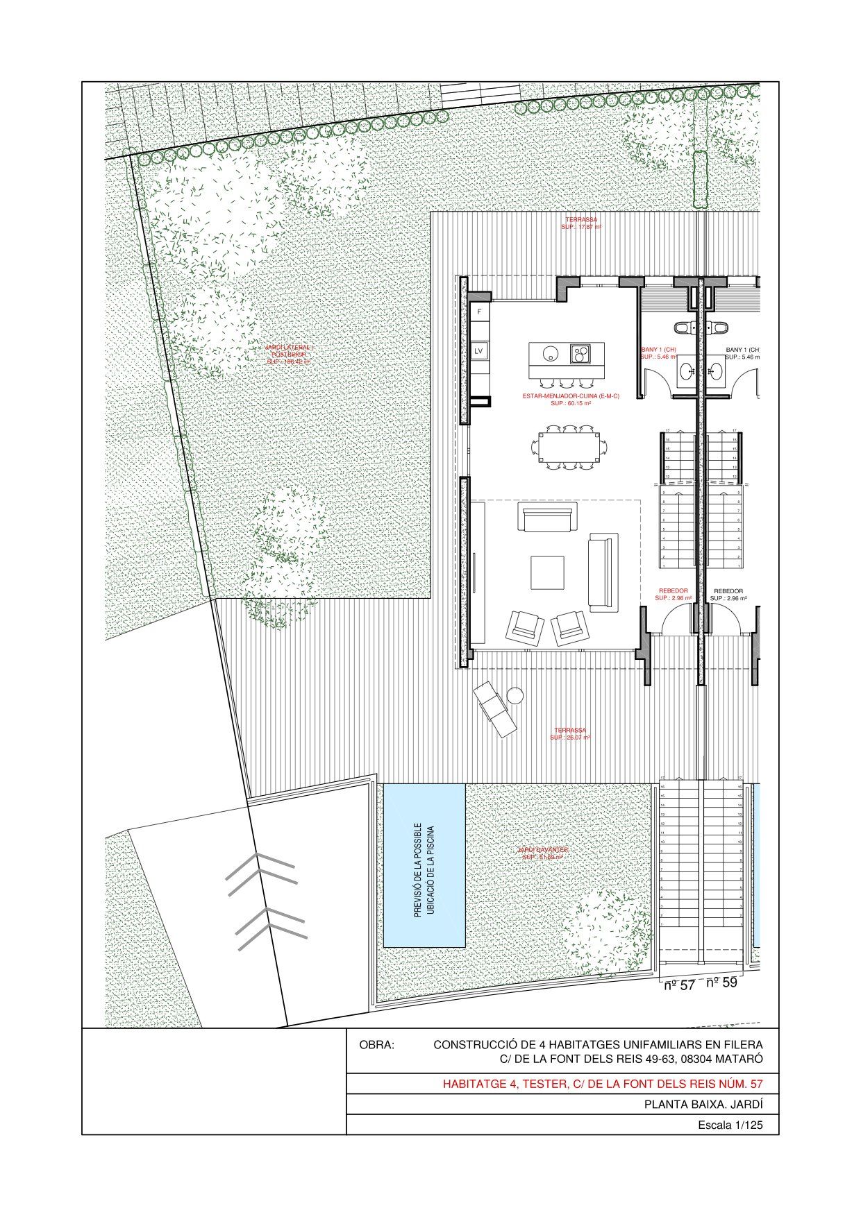
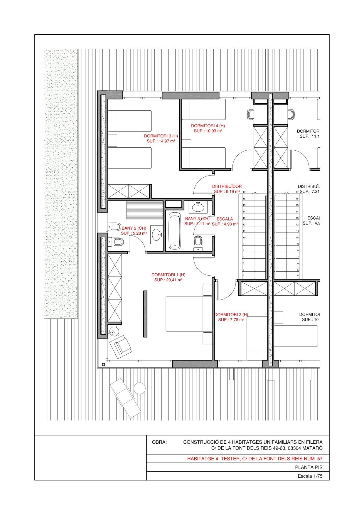
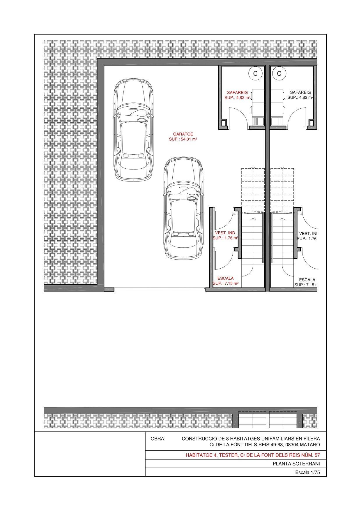
HABITATGE 4

Habitatge testera amb garatge estàndard.

- Superfície construïda:    252,46 m2
- Superfície parcel·la:  408,59 m2
- Habitacions: 4
- Banys: 3

- Estat: VENUDA

HABITATGE 5

Habitatge testera amb garatge estàndard.

- Superfície construïda:    252,46 m2
- Superfície parcel·la:  408,66 m2
- Habitacions: 4
- Banys: 3

- Estat: VENUDA

HABITATGE 6

Habitatge entre mitgeres.

- Superfície construïda:  252,19 m2
- Superfície parcel·la:  202,60 m2
- Habitacions: 4
- Banys: 3

- Estat: VENUDA

HABITATGE 7

Habitatge entre mitgeres.

- Superfície construïda:  255,19 m2
- Superfície parcel·la:  202,62 m2
- Habitacions: 4
- Banys: 3

- Estat: VENUDA
 

HABITATGE 8

Habitatge testera amb garatge gran.

- Superfície construïda: 292,79 m2
- Superfície parcel·la: 408,68 m2
- Habitacions: 4
- Banys: 3

- Estat: VENUDA